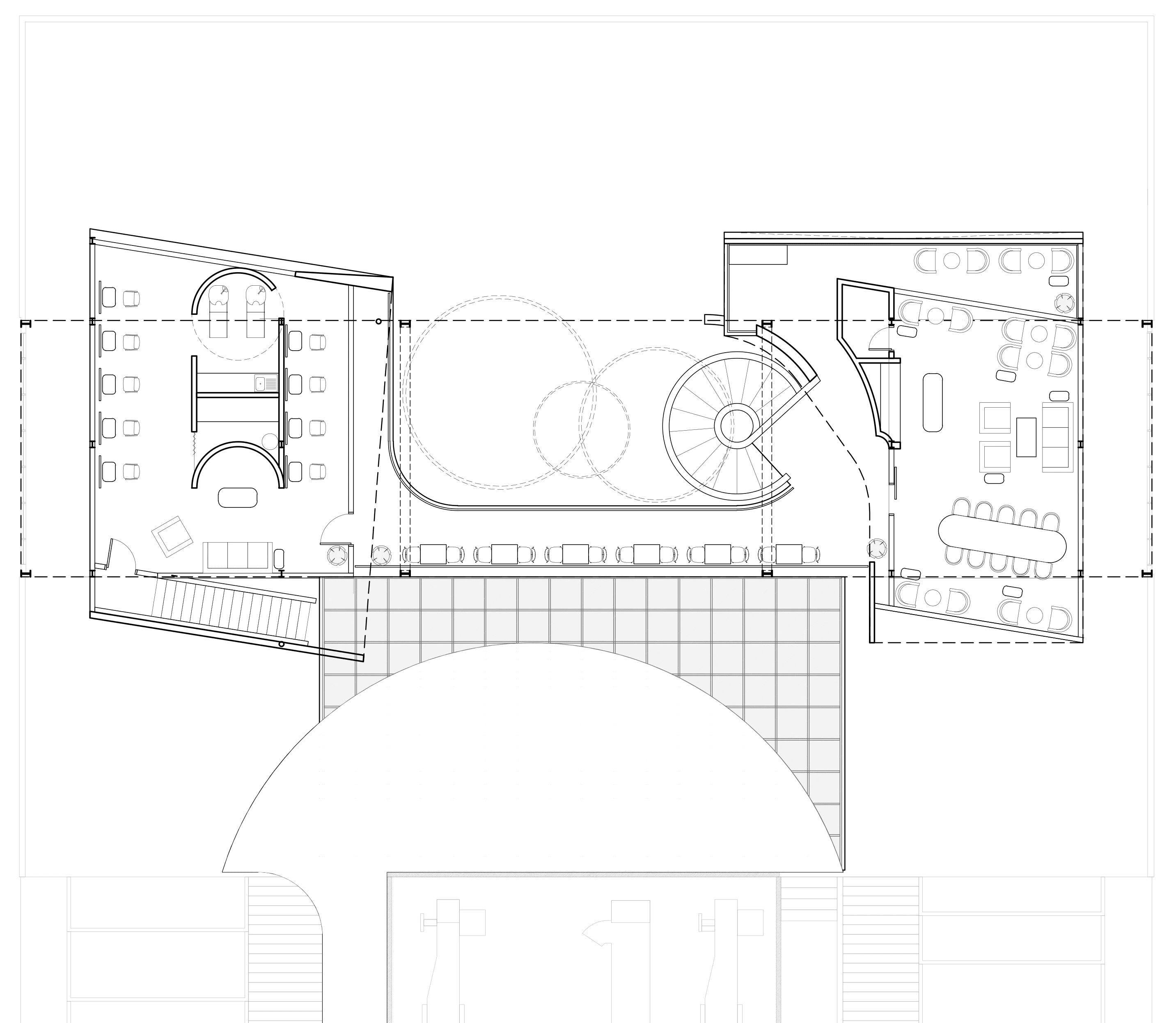
F - Bar on Top



Cebu, Philippines
Cebu, Philippines
Year
2022
Client
Private
Typology
Commercial, Food & Beverage, Service
Service
Architecture
Status
Completed - SD Stage
Category
Unbuilt
Collaboration
Zubu Design Associates
Year
2022
Client
Private
Typology
Commercial, Food & Beverage, Service
Service
Architecture
Status
Completed - SD Stage
Category
Unbuilt
Collaboration
Zubu Design Associates
Year
2022
Client
Private
Typology
Commercial, Food & Beverage, Service
Service
Architecture
Status
Completed - SD Stage
Category
Unbuilt
Collaboration
Zubu Design Associates
-
-
-
© F - Bar on Top
© F - Bar on Top
© F - Bar on Top



















































Concept
-
Scope
-
Concept
-
Scope
-
Concept
-
Scope
-
Fuente Tower
Statoes
Fuente Tower
Statoes
Fuente Tower
Statoes